U gebruikt een verouderde internetbrowser.
We raden u aan om de meest recente internetbrowser te installeren voor de beste weergave van deze website.
Een internetbrowser die up to date is, staat ook garant voor veilig surfen.

Bareelstraat 42 , 2500 Lier
Vraagprijs: € 225.000

Omschrijving

Te renoveren woning met 2 slpks en tuintje

Karakteristieke rijwoning op een uitstekende locatie aan de stadsrand. Nabij scholen, supermarkt, openbaar vervoer (station op 300 m). Op wandelafstand van het stadscentrum, de stadsvesten en fiets- en wandelroutes langs de Nete- en kanaaldijken. Deze te renoveren gezinswoning heeft een solide basis en biedt diverse mogelijkheden om ze volledig naar uw smaak en visie in te richten.
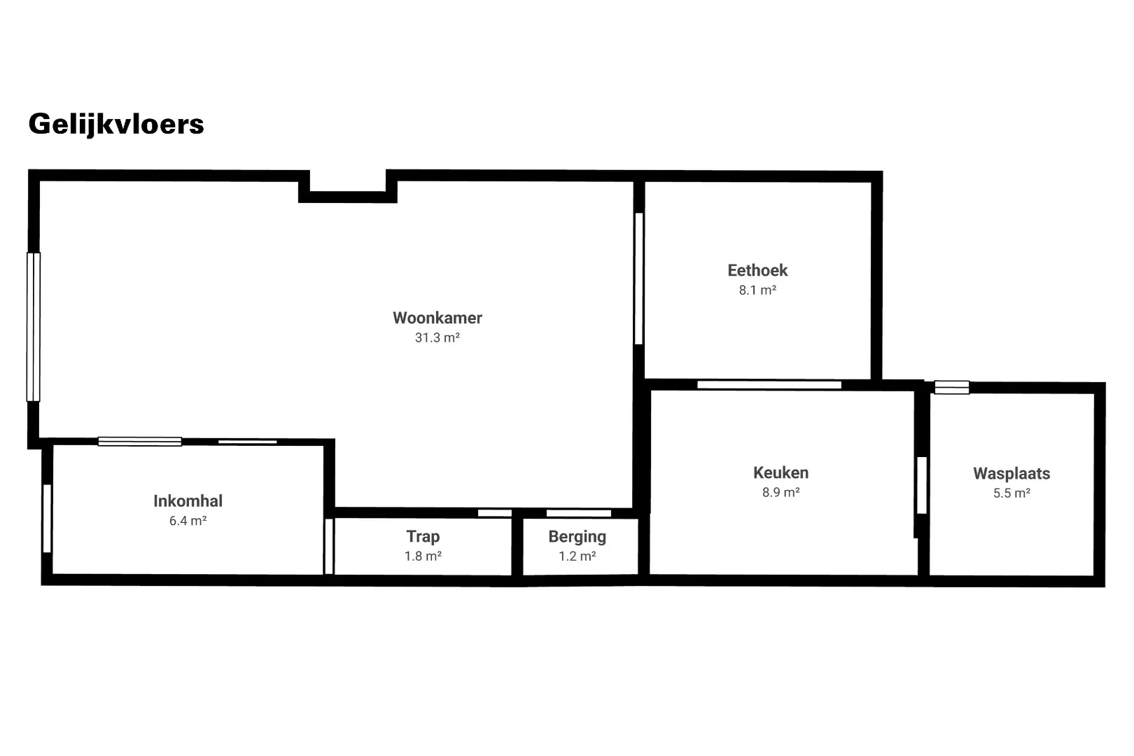
U komt binnen via de ruime inkom- en traphal met aansluitend de lichtrijke woonkamer met aan de zijkant de toegang tot de kelder en een kleine berging. Achter de woonkamer bevindt zich de gezellige eetplaats met directe connectie naar de tuin en de ruime, deels geïnstalleerde keuken. Achter de keuken vindt u een ruime was- en stookplaats met toilet.
Op de bovenverdieping is er de ruime nachthal die direct toegang geeft tot 2 ruime slaapkamers (ca. 14 en 21 m²) en de badkamer met douche, lavabo en toilet. De kelder is ideaal voor extra stockage of installatie van nieuwe nutsleidingen.
Het terras en het tuintje zijn de ideale plek om bij mooi weer even te verpozen en op adem te komen. Er is mogelijkheid om in de tuinmuur achteraan een doorgang te maken naar het paadje achter de woningen. Een handige uitweg voor fietsen en vuilcontainers.
Kenmerken
+ ideale locatie
+ diverse mogelijkheden
+ doorgang achteraan mogelijk
+ solide basisstructuur
+ geen renovatieverplichting
Ontdek deze woning al via onze virtuele tour op www.avantivastgoed.be
Maakt u van deze woning een moderne, nieuwe thuis? Afspraak via 0479 01 00 00 of info@avantivastgoed.be.


Kenmerken

Algemeen

Adres:Bareelstraat 42
Lier
Referentie:TK/2026/0195
Vraagprijs:€ 225.000
Type:Stadswoning
Beschikbaar vanaf:Bij akte
Perceeloppervlakte:114 m²
Bebouwde opp.:64 m²
Bewoonbare opp.:130 m²
Type constructie:Traditioneel
Gevelbreedte:5,5 m
Bouwlagen:2
Algemene staat:Te renoveren

Indeling

Slaapkamers:2
Badkamers:1
WC:2
Woonkamer:31 m², Woonkamer
Keuken:9 m², Open keuken
Kelder:7 m²
Terras:8 m²
Tuin:44 m²
Tuin oriëntatie:Oost
Tuin kwaliteit:Verwaarloosd

Comfort

Treinstation:Ja - op minder dan 500 m
Bushalte:Ja - op minder dan 500 m
Winkel:Ja - op minder dan 500 m
School:Ja - op minder dan 500 m
Kinderopvang:Ja - op minder dan 500 m
Bank:Ja - op minder dan 500 m
Ontspanning:Ja - op minder dan 500 m
Restaurant:Ja - op minder dan 500 m
Rolluiken:Ja

Informatieplicht

EPC Certificaat Nr.:Certificaat-20260214-0003797308-RES-1
EPC Index:620,00 kWh/(m² jaar)
Energielabel:F
Renovatieplicht:Ja
Voorkooprecht:Neen
Stedenbouwkundige bestemming:Woongebied
Dagvaarding en herstelvordering:Geen rechterlijke herstelmaatregel of bestuurlijke maatregel opgelegd
Overstromingsgevoelig:Geen overstromingsgevoelig gebied
Overstromingsgebied:Niet meegedeeld
Overstromingskans perceel (P-score):A
Overstromingskans gebouw (G-score):A
Erfgoed:Geen beschermd erfgoed
Deze eigendom kan onderhevig zijn aan de renovatieverplichting die door de Vlaamse overheid wordt opgelegd voor residentiële gebouwen. Consulteer voor meer informatie de website van het Vlaams Energie- en Klimaatagentschap via https://www.vlaanderen.be/een-woning-kopen/renovatieverplichting-voor-residentiele-gebouwen

Ligging

360°

Neem vrijblijvend contact op

Wenst u meer informatie of het pand te bezoeken? Vul onderstaand formulier in of bel ons op 0479 01 00 00


U moet akkoord gaan met het privacybeleid van deze website
* Verplicht in te vullen
Niet gevonden wat u zocht? Schrijf u dan vrijblijvend in en blijf op de hoogte van ons recentste aanbod.
Schrijf u in
Terug naar boven
Sluit menu AVANTI vastgoed