U gebruikt een verouderde internetbrowser.
We raden u aan om de meest recente internetbrowser te installeren voor de beste weergave van deze website.
Een internetbrowser die up to date is, staat ook garant voor veilig surfen.

Grote Baan 234 , 2235 Hulshout
Vraagprijs: € 319.000

Omschrijving

Gezinswoning met 2/3 slpks, ruime tuin en magazijn

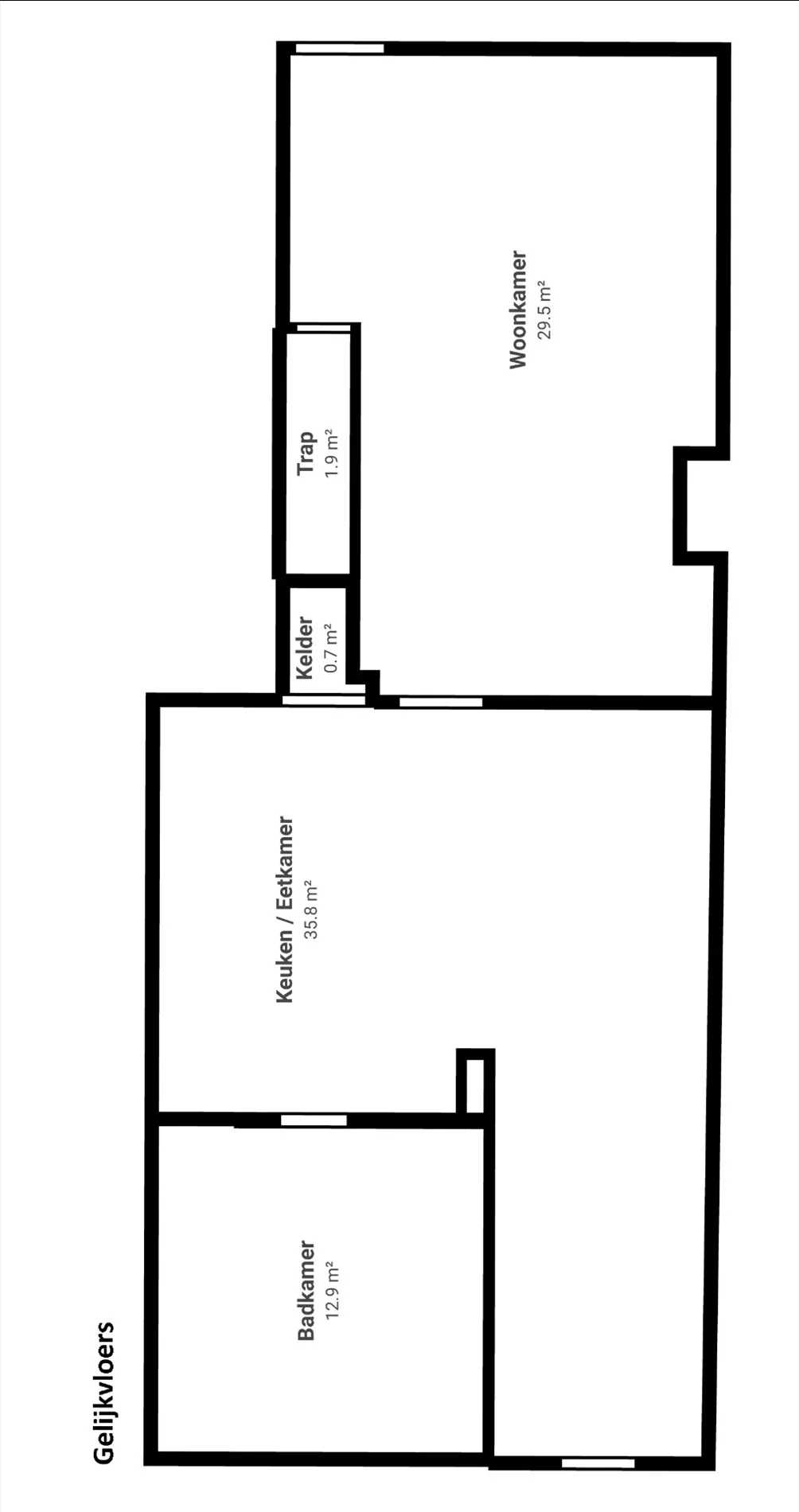
Charmante, op te knappen halfopen bebouwing met ruime tuin (mogelijke bouwgrond) en magazijn/werkplaats. Deze ruime gezinswoning ligt kort bij het centrum van Hulshout met uitstekende verbinding naar Heist-op-den-Berg en omliggende gemeenten. Op wandelafstand van de dorpskern, scholen, winkels en openbaar vervoer. Indeling – GLV: ruime woonkamer, traphal, geïnstalleerde keuken met riante eetplaats, gerenoveerde badkamer met ligbad, lavabo, aansluiting voor WM/DK en toilet, veranda, stookplaats, berging en overdekt terras.
Bovenverdieping – ruime nachthal en 2 ruime slaapkamers.
De leefruimte is nog uitbreidbaar via de ruime zolder die bereikbaar is via een vaste trap. Er is eveneens een proviandkelder.
De tuinzones zijn onderhoudsvriendelijk aangelegd met o.a. een oprit op kasseien. Achter de woning is er een multifunctioneel bijgebouw geschikt als magazijn/atelier/garage. Voor de woning ligt er een aangelegde parking voor meerdere wagens.
Kenmerken
Ruime woning; goed gelegen; verwarming op stookolie; renovatieplicht; niet-asbestveilig; ruim bijgebouw..
Dit is een leuke gezinswoning met veel mogelijkheden die na een grondige opknapbeurt een ideale thuis zal worden!
Ontdek ze nu reeds dankzij onze virtuele tour via de link op www.avantivastgoed.be
Benieuwd wat deze woning u te bieden heeft? Maak snel uw afspraak via 0479 01 00 00 of info@avantivastgoed.be


Kenmerken

Algemeen

Adres:Grote Baan 234
Hulshout
Referentie:TK/2025/0173
Vraagprijs:€ 319.000
Type:Woning
Beschikbaar vanaf:Bij akte
Ligging:Buiten bebouwde kom
Perceeloppervlakte:571 m²
Perceelbreedte:15,4 m
Bebouwde opp.:168 m²
Bewoonbare opp.:168 m²
Type constructie:Traditioneel
Gevelbreedte:7 m
Bouwlagen:2
Algemene staat:Op te frissen

Indeling

Slaapkamers:2
Badkamers:1
WC:1
Woonkamer:30 m²
Keuken:36 m², Gesloten keuken, Ingericht met toestellen
Terras:6 m²
Tuin:Ja
Tuin oriëntatie:Zuid
Tuin kwaliteit:Fraai aangelegd
Parking:6
Parking Types:Privé

Comfort

Winkel:Ja - op minder dan 500 m
School:Ja - op minder dan 500 m
Kinderopvang:Ja - op minder dan 500 m
Bank:Ja - op minder dan 500 m
Restaurant:Ja - op minder dan 500 m
Raamwerk:Hout
Dak:Zadeldak
Dakbedekking:Dakpannen
Gevel:Baksteen
Verwarming:Stookolie
Verwarmd water:Elektrische boiler
Rolluiken:Ja

Kadastrale gegevens

Niet geïndexeerd K.I.:€ 587
Kadastrale benaming:Huis
Kadastrale Nummers:D152/00C2
Kadastrale Oppervlakte:571 m²

Informatieplicht

EPC Certificaat Nr.:20251113-0003732439-RES-1
EPC Index:734,00 kWh/(m² jaar)
Energielabel:F
Renovatieplicht:Ja
Asbestattest:Ja
Voorkooprecht:Neen
Stedenbouwkundige bestemming:Woongebied
Dagvaarding en herstelvordering:Geen rechterlijke herstelmaatregel of bestuurlijke maatregel opgelegd
Overstromingsgevoelig:Geen overstromingsgevoelig gebied
Overstromingsgebied:Niet meegedeeld
Overstromingskans perceel (P-score):A
Overstromingskans gebouw (G-score):A
Erfgoed:Geen beschermd erfgoed
Deze eigendom kan onderhevig zijn aan de renovatieverplichting die door de Vlaamse overheid wordt opgelegd voor residentiële gebouwen. Consulteer voor meer informatie de website van het Vlaams Energie- en Klimaatagentschap via https://www.vlaanderen.be/een-woning-kopen/renovatieverplichting-voor-residentiele-gebouwen

Ligging

360°

Neem vrijblijvend contact op

Wenst u meer informatie of het pand te bezoeken? Vul onderstaand formulier in of bel ons op 0479 01 00 00


U moet akkoord gaan met het privacybeleid van deze website
* Verplicht in te vullen
Niet gevonden wat u zocht? Schrijf u dan vrijblijvend in en blijf op de hoogte van ons recentste aanbod.
Schrijf u in
Terug naar boven
Sluit menu AVANTI vastgoed