U gebruikt een verouderde internetbrowser.
We raden u aan om de meest recente internetbrowser te installeren voor de beste weergave van deze website.
Een internetbrowser die up to date is, staat ook garant voor veilig surfen.

Oude Bevelsesteenweg 99 , 2560 Kessel
Vraagprijs: € 380.000

Omschrijving

Instapklare woning met ruime tuin en 3 slpks - toplocatie

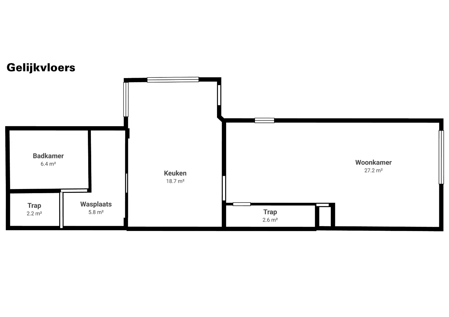
Deze instapklare woning met ruime tuin ligt op een ideale ligging. Rustig gelegen in een landelijke en natuurrijke omgeving. Op enkele minuten van de dorpskern, winkels en openbaar vervoer. Het treinstation ligt op ca. 2,5 kilometer. Deze charmante woning werd in 2018 grondig vernieuwd met kwalitatieve en duurzame materialen. De ruime tuin is een ware oase en heeft een aparte in- en uitgang via de Voetweg achteraan. Deze halfopen bebouwing heeft volgende indeling: GLV – ruime en volledig geïnstalleerde keuken in landelijke stijl, aansluitend de wasplaats met WM/DK, vervolgens de ruime badkamer met bad, toilet en lavabo, met de trap bereikt u de master bedroom (1) op de bovenverdieping met tevens ruimte voor een bureau of dressing. Terug op het gelijkvloers vindt u de ruime en lichtrijke woonkamer met eetplaats en knusse zitplaats.
Via de aparte traphal bereikt u het andere deel van de bovenverdieping met nog 2 ruime slaapkamers (2 en 3) en een zolder met veel opbergcapaciteit. Het bijgebouw achter de woning is momenteel berging en werkplaats.
Buiten is er een ruime tuin met groot terras, dé ideale plek om te verpozen en bij mooi weer volop te genieten. Achteraan de tuin bevindt zich een ruime carport.
Kenmerken
Instapklaar
Groene omgeving
Veel buitenruimte
Elektriciteit conform
Asbestveilig
Gunstig EPC (label B)
Ontdek deze woning al via onze virtuele rondleiding op www.avantivastgoed.be
Wordt dit misschien uw nieuwe thuis? Bel 0479 01 00 00 of mail info@avantivastgoed.be


Kenmerken

Algemeen

Adres:Oude Bevelsesteenweg 99
Kessel
Referentie:TK/2026/0198
Vraagprijs:€ 380.000
Type:Woning
Beschikbaar vanaf:Bij akte
Perceeloppervlakte:778 m²
Perceelbreedte:10 m
Perceeldiepte:78 m
Bebouwde opp.:90 m²
Bewoonbare opp.:146 m²
Type constructie:Traditioneel
Renovatiejaar:218
Algemene staat:Instapklaar

Indeling

Kamers:7
Slaapkamers:3
Badkamers:1
WC:1
Woonkamer:27 m²
Keuken:19 m²
Terras:33 m²
Tuin:655 m²
Parking:1
Parking Types:Privé

Comfort

Treinstation:Ja - op 2000 m tot 3000 m
Bushalte:Ja - op 1000 m tot 1500 m
Winkel:Ja - op 1500 m tot 2000 m
School:Ja - op 1500 m tot 2000 m
Kinderopvang:Ja - op 500 m tot 1000 m
Bank:Ja - op 1000 m tot 1500 m
Ontspanning:Ja - op 1500 m tot 2000 m
Raamwerk:PVC
Dak:Zadeldak
Dakbedekking:Dakpannen
Beglazing:Dubbel, Hoogrendementsglas
Verwarming:Stookolie
Rolluiken:Ja

Kadastrale gegevens

Niet geïndexeerd K.I.:€ 557
Kadastrale benaming:Huis
Kadastrale Nummers:0250A3

Informatieplicht

EPC Index:187,00 kWh/(m² jaar)
Energielabel:B
Renovatieplicht:Neen
Asbestattest:Ja
Elektriciteitskeuring:Ja
Energie Prestatie Certificaat:Ja
Voorkooprecht:Ja
Stedenbouwkundige bestemming:Woongebied
Overstromingsgevoelig:Geen overstromingsgevoelig gebied
Overstromingsgebied:Niet meegedeeld
Overstromingskans perceel (P-score):A
Overstromingskans gebouw (G-score):A
Erfgoed:Geen beschermd erfgoed

Ligging

360°

Neem vrijblijvend contact op

Wenst u meer informatie of het pand te bezoeken? Vul onderstaand formulier in of bel ons op 0479 01 00 00


U moet akkoord gaan met het privacybeleid van deze website
* Verplicht in te vullen
Niet gevonden wat u zocht? Schrijf u dan vrijblijvend in en blijf op de hoogte van ons recentste aanbod.
Schrijf u in
Terug naar boven
Sluit menu AVANTI vastgoed