U gebruikt een verouderde internetbrowser.
We raden u aan om de meest recente internetbrowser te installeren voor de beste weergave van deze website.
Een internetbrowser die up to date is, staat ook garant voor veilig surfen.

Bevelsesteenweg 8 / C , 2560 Nijlen
Vraagprijs: € 360.000

Omschrijving

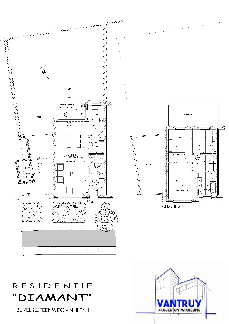
Nieuwbouwwoning casco met 3 slpks en Z-tuin

Deze nieuwbouwwoning met 3 slaapkamers en zuid-tuin ligt op een echte toplocatie. Zeer rustig maar toch op minder dan 100 meter van het dorpscentrum. Uitgerust met energiezuinige en duurzame technieken zoals een warmtepomp, vloerverwarming, ventilatiesysteem, regenwaterrecuperatie, zonnepanelen, .... Indeling:

 GLV – inkom; gastentoilet; woonkamer; open keuken; directe toegang tot terras en tuin; technische berging (aansluiting WM/DK en technieken). Bovenverdieping – 3 ruime slaapkamers en ruime badkamer.

 Terras en tuinzones worden aangelegd. De tuin wordt omheind en er is een ruime berging.

U hebt hier de mogelijkheid om de woning in te richten naar eigen stijl en smaak. Vloeren, trap, deuren, keuken, badkamer en sanitair kunt u nog helemaal afwerken naar keuze volgens het lastenboek. Aankoop onder stelsel van registratierechten (grond) en BTW (woning). Een ondergrondse parking is verplicht aan te (huur-)kopen.
Wilt u ook duurzaam en energiezuinig wonen in alle comfort? Bel voor info of een bezoek 0479 01 00 00 of mail naar info@avantivastgoed.be


Kenmerken

Algemeen

Adres:Bevelsesteenweg 8-C
Nijlen
Referentie:TK/2025/0170
Vraagprijs:€ 360.000
Type:Woning
Beschikbaar vanaf:Bij akte
Perceeloppervlakte:365 m²
Bebouwde opp.:78 m²
Bewoonbare opp.:131 m²
Type constructie:Traditioneel
Bouwjaar:2024
Bouwlagen:2

Indeling

Slaapkamers:3
Badkamers:1
WC:2
Terras:11 m²
Tuin:200 m²
Tuin oriëntatie:Zuid

Comfort

Treinstation:Ja - op minder dan 500 m
Raamwerk:Aluminium
Verwarming:Warmtepomp
Isolatie:Volledig geïsoleerd

Informatieplicht

Energielabel:A
Stedenbouwkundige vergunning:Ja
Verkavelingsvergunning van toepassing:Ja
Stedenbouwkundige bestemming:Woongebied
Dagvaarding en herstelvordering:Geen rechterlijke herstelmaatregel of bestuurlijke maatregel opgelegd
Overstromingsgevoelig:Geen overstromingsgevoelig gebied
Overstromingsgebied:Niet meegedeeld
Overstromingskans perceel (P-score):A
Overstromingskans gebouw (G-score):A
Erfgoed:Niet meegedeeld

Ligging

360°

Neem vrijblijvend contact op

Wenst u meer informatie of het pand te bezoeken? Vul onderstaand formulier in of bel ons op 0479 01 00 00


U moet akkoord gaan met het privacybeleid van deze website
* Verplicht in te vullen
Niet gevonden wat u zocht? Schrijf u dan vrijblijvend in en blijf op de hoogte van ons recentste aanbod.
Schrijf u in
Terug naar boven
Sluit menu AVANTI vastgoed